About this property

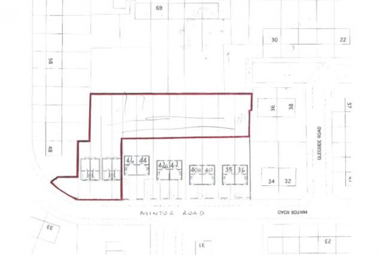
A vacant plot of land with development potential. The land would be suitable for a number of uses, subject to any necessary planning consents. Plans have been drawn up for the erection of 4 x semi detached dwellings and are available to view at the auctioneers office. We have been advised there is possible potential for the erection of 12 units with two access routes, one via Glegside Road and the second via Mintor Road subject to gaining the necessary consents and purchasers are advised to make their own enquiries. There is a small piece of land belonging to the Council to form part of the development and could be purchased separately, potential purchasers should enquire with the Council directly. We believe that all main services are available however potential purchasers should make their own further enquiries.

Listed By

Sutton Kersh - Auctions
2 Cotton Street,
Liverpool,
L3 7DY

t. 0151 207 6315
f. 0151 207 6316
auctions@suttonkersh.co.uk

Full Description

Situated

Off Simonswood Lane in a popular and well established residential location within close proximity to local amenities and schooling. GUIDE PRICES & RESERVE PRICES Guide Price An indication of the seller’s current minimum acceptable price at auction. The guide price or range of guide prices is given to assist consumers in deciding whether or not to pursue a purchase. It is usual, but not always the case, that a provisional reserve range is agreed between the seller and the auctioneer at the start of marketing. As the reserve is not fixed at this stage and can be adjusted by the seller at any time up to the day of the auction in the light of interest shown during the marketing period, a guide price is issued. This guide price can be shown in the form of a minimum and maximum price range within which an acceptable sale price (reserve) would fall, or as a single price figure within 10% of which the minimum acceptable price (reserve) would fall. A guide price is different to a reserve price (see separate definition). Both the guide price and the reserve price can be subject to change up to and including the day of the auction. Reserve Price The seller’s minimum acceptable price at auction and the figure below which the auctioneer cannot sell. The reserve price is not disclosed and remains confidential between the seller and the auctioneer. Both the guide price and the reserve price can be subject to change up to and including the day of the auction.

Photos
Interactive Map
Arrange a Viewing / Enquire

We would love to hear from you

Simply fill in and send the form and one of our consultants will get in touch with you shortly. Please note all fields marked with * must be completed.

Your information is being collected and processed by Countrywide. All information will be processed in accordance with the General Data Protection Regulation. Full details of how we process your information can be found on our website Privacy Policy. Print copies of our privacy notice are available on request. If you need to discuss how your information is being processed, please contact us at privacy@countrywide.co.uk

Viewings

We are following Government Guidelines to allow viewings to take place on vacant lots. Where possible, we will upload 360° tours or video tours and internal pictures of lots on our website and we advise that you view these before booking a viewing. We would respectfully remind all parties that strict social distancing will be applied to viewings and facemasks must be worn. You will be allocated a strict 10-minute slot, must attend alone, and wear a facemask. We do ask for your patience, it may not always be possible to accommodate everyone, but we assure you our team is working hard to keep the property market open.

* Guide Price

An indication of the seller’s current minimum acceptable price at auction. The guide price or range of guide prices is given to assist consumers in deciding whether or not to pursue a purchase. It is usual, but not always the case, that a provisional reserve range is agreed between the seller and the auctioneer at the start of marketing. As the reserve is not fixed at this stage and can be adjusted by the seller at any time up to the day of the auction in the light of interest shown during the marketing period, a guide price is issued. This guide price can be shown in the form of a minimum and maximum price range within which an acceptable sale price (reserve) would fall, or as a single price figure within 10% of which the minimum acceptable price (reserve) would fall. A guide price is different to a reserve price (see separate definition). Both the guide price and the reserve price can be subject to change up to and including the day of the auction.

* Reserve Price

The seller's minimum acceptable price at auction and the figure below which the auctioneer cannot sell. The reserve price is not disclosed and remains confidential between the seller and the auctioneer.

Both the guide price and the reserve price can be subject to change up to and including the day of the auction.

Buyer's Fee

You will also pay a Buyers Administration Charge, to the auctioneers of 1.35%+VAT of the purchase price subject to a minimum fee of £1,800 + VAT (unless otherwise stated in the property description in the catalogue or addendum).

Legal Packs

You are bidding on the basis that you have made all necessary enquiries, particularly in respect of lots the auctioneer has not inspected or had initial sight of tenancy details, and have checked the General and Special Conditions of Sale and are satisfied that you fully understand their content. Please note that some legal packs may contain additional fees (such as the requirement for the seller to pay the vendor's legal fees)

NAEA propertymark logo

ARLA propertymark logo

We are a member of the Propertymark Client Money Protection Scheme
View CMP Certificate
Conduct & Membership Rules

The Property Ombudsman logo

^M